Tyribakken 37

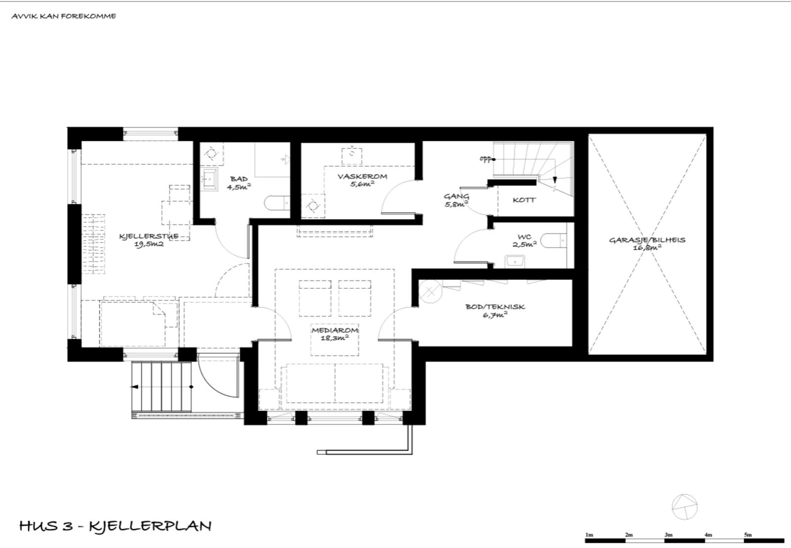
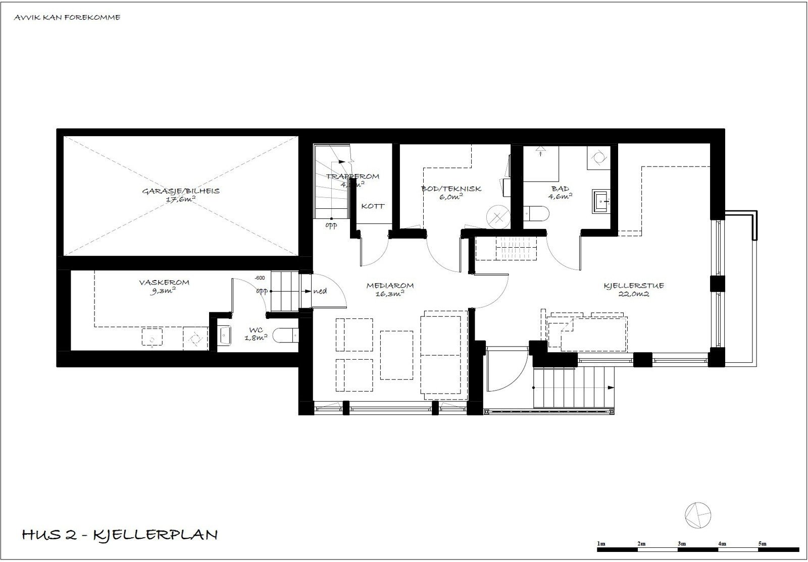
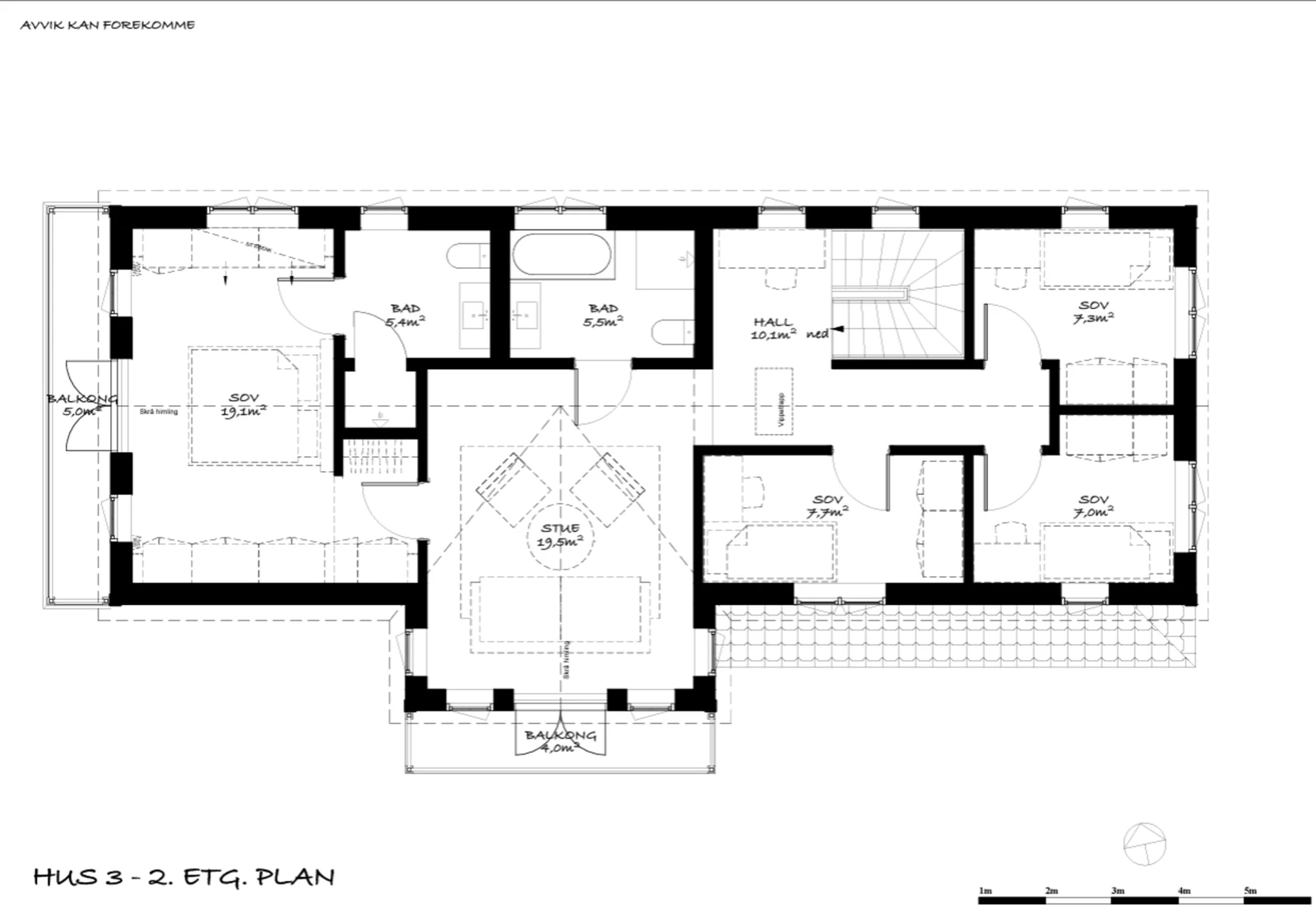
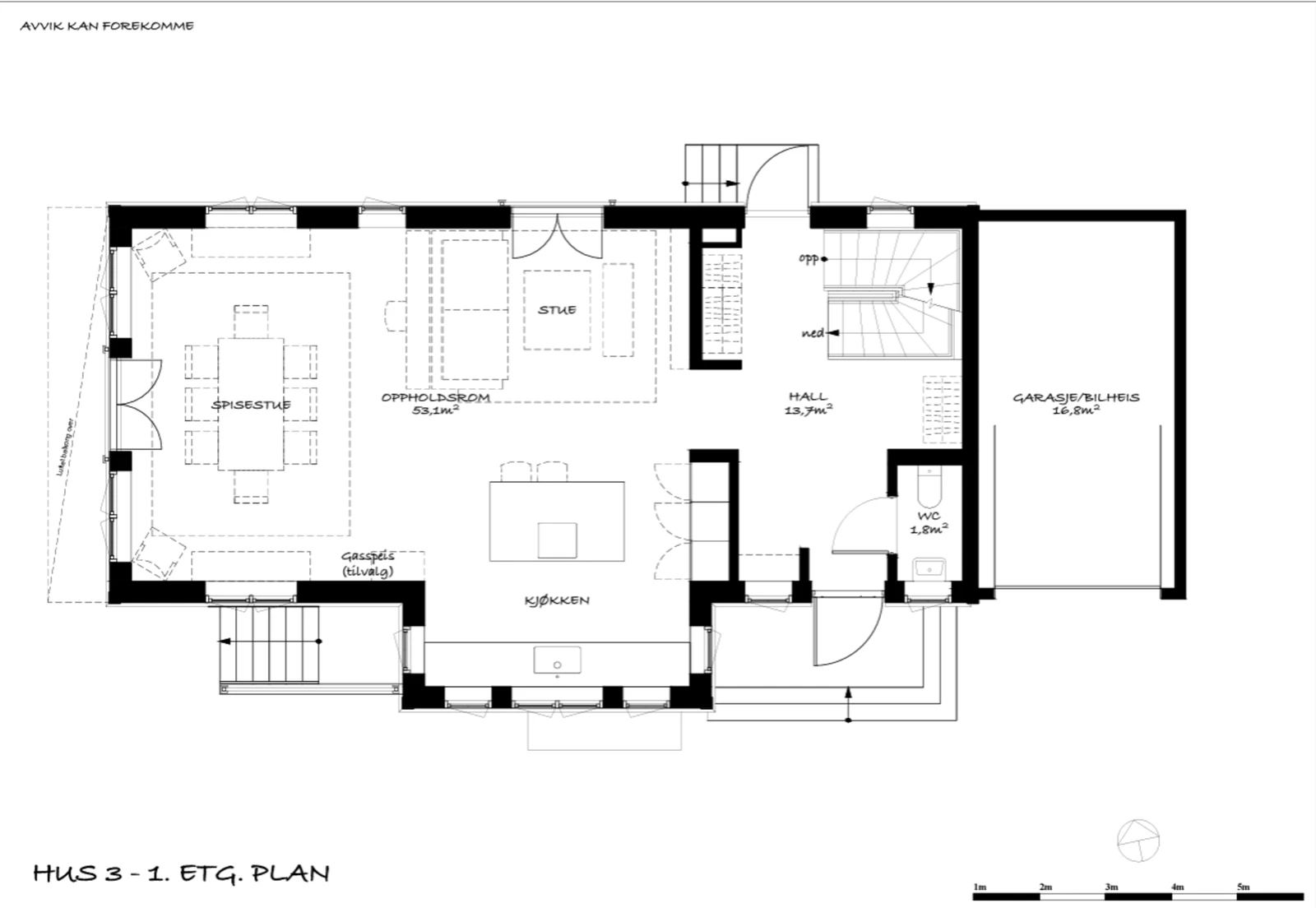
3 store, unike og klassiske eneboliger med sjøutsikt på attraktive Ullern/Bestum. Prosjektet har vektlagt moderne utførelse med klassisk utforming som glir godt inn i nærmiljøet. Nøytrale men innbydende farger skaper et gjennomført totalinntrykk

Kunde
M3 ATLAS FORBES AS

År
2022

Forrige
Forrige

Holtet Hage II

Neste
Neste

Slemdalsveien 101